A range of existing and proposed plans, elevations and sections for alterations to a Church with the relocation of the Ventry, a new Creche and a new kitchen layout. The proposal also included a new layout for the Church, removing the Pews, adding a fire exit door and creating new floor levels with a new altar and music store.
Existing Site Plan
Existing Site Plan
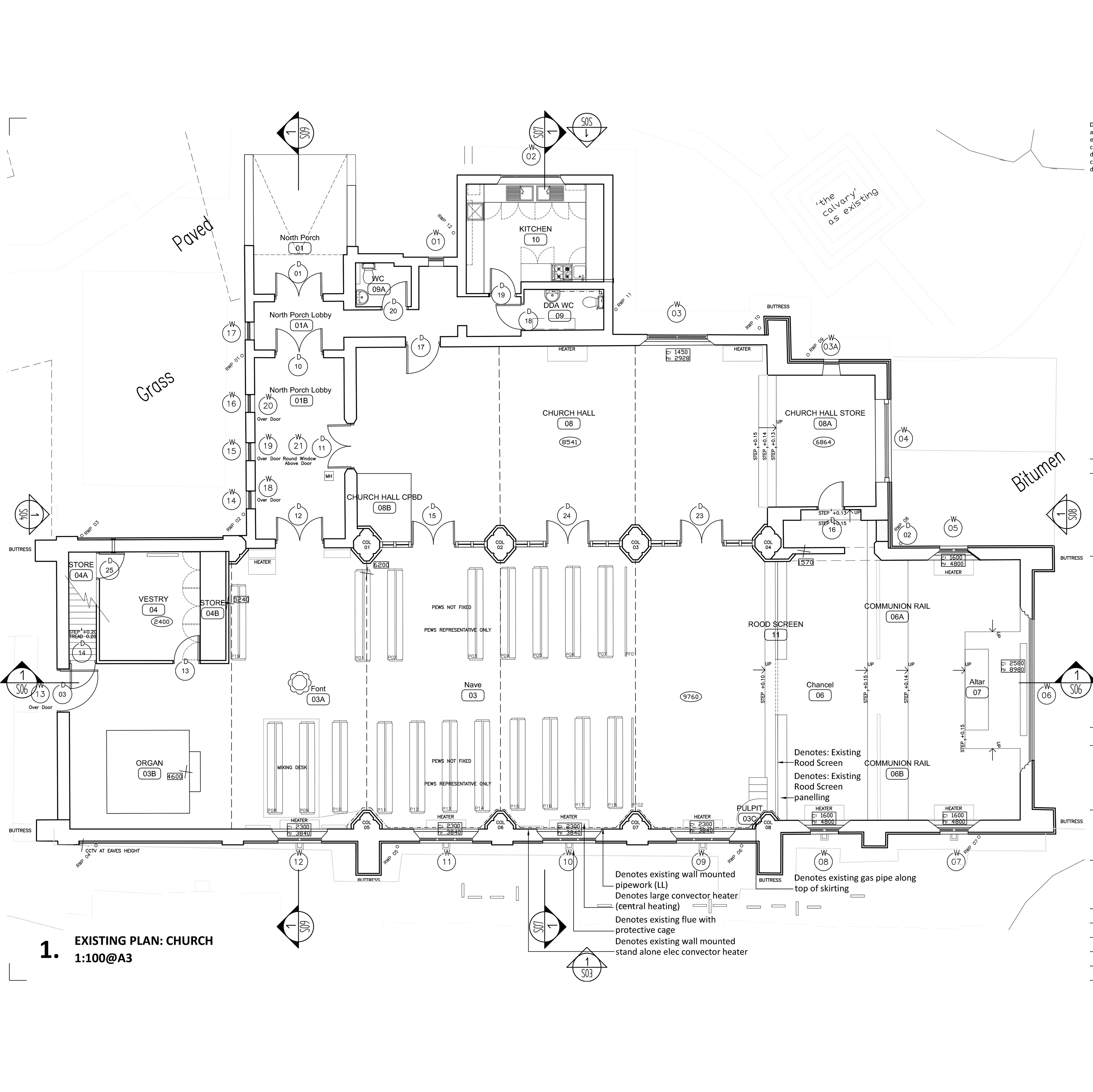
Existing Ground Floor Plan
Existing Ground Floor Plan
Existing North Elevation
Existing North Elevation
Existing East Elevation
Existing East Elevation
Existing South Elevation
Existing South Elevation
Existing West Elevation
Existing West Elevation
Existing Section
Existing Section
Existing Section
Existing Section
Existing Section
Existing Section
Proposed Ground Floor Plan
Proposed Ground Floor Plan
Proposed Ground Floor Plan
Proposed Ground Floor Plan
Proposed North Elevation
Proposed North Elevation
Proposed East Elevation
Proposed East Elevation
Proposed South Elevation
Proposed South Elevation
Proposed West Elevation
Proposed West Elevation
Proposed Section
Proposed Section
Proposed Section
Proposed Section
Proposed Section
Proposed Section
Proposed Callout
Proposed Callout
Proposed Door Detail
Proposed Door Detail
Proposed Door Detail
Proposed Door Detail
Proposed Fire Door Detail
Proposed Fire Door Detail
Proposed Callout
Proposed Callout
Proposed Ground Floor Plan
Proposed Ground Floor Plan
Proposed External Works
Proposed External Works